Adjudicada la modernización de la avenida de la Estación de Huércal-Overa
Diputación aprueba una actuación con la que se ejecutará, entre otras, una glorieta en una de las vías que vertebra el municipio
La Diputación de Almería informó ayer de la adjudicación de la integración de la avenida de la Estación en el entramado urbano de Huércal-Overa ... después de que la Junta de Gobierno aprobase el expediente de una obra que supondrá una inversión de 447.800 euros, financiados por la Institución Provincial y el Ayuntamiento.
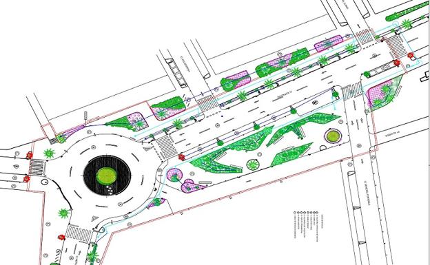
Se trata de una actuación con la que se construirá una glorieta y se dará también continuidad a las aceras accesibles y el mobiliario urbano de una avenida que vertebra Huércal-Overa. Unas obras que no sólo supondrán una mejora urbana, sino también de seguridad para el tráfico de vehículos y bicicletas y la seguridad de los peatones.
La nueva glorieta tendrá el nombre de la Plaza de la Infantería de Marina Española dando respuesta a la petición que realizó el Paso Blanco para una de las entradas más importantes a la villa huercalense.
La actuación va a consistir en mejoras de acerados, jardinería, iluminación y asfaltados, que completarán el entorno de la glorieta con la que se va mejorar la movilidad y los accesos a esta zona del municipio.
Ampliar
Del mismo modo, esta obra transformará la estética de este acceso a Huércal-Overa. Se trata de la primera fase de una actuación global que se prolongará, posteriormente, por toda la avenida de la Estación.
El diputado de Fomento, Óscar Liria, felicitó a los proyectistas por haber apostado por el concepto del confort urbano. «La actuación busca el equilibro entre el bienestar de los vecinos y la comodidad en su uso. Para ello, se van a utilizar diferentes materiales y elementos naturales que permitan embellecer la zona con un diseño funcional que busca potenciar la seguridad», aseguró.
Por su parte, el alcalde de Huércal-Overa, Domingo Fernández, destacó que con esta actuación «pretendemos solucionar los problemas de tráfico en la zona, a la vez que se mejora la estética de esta avenida, un lugar con mucho tránsito que une uno de los accesos a nuestro municipio con el centro urbano creando una línea de modernidad acorde con las líneas incluidas en nuestro Plan Estratégico».
¿Tienes una suscripción? Inicia sesión